新築一戸建て NEW

滝沢市鵜飼諸葛川

この物件は 12人の方が見ています
築10年以内 南向き 駐車場2台可 バリアフリー

*2026年4月完成予定!
*滝沢中央小学校まで1260m徒歩16分!
*滝沢南中学校まで2700m徒歩34分!
*セブンイレブン鵜飼店まで460m徒歩6分!
*アークス青山店まで990m徒歩13分!
*いとく滝沢店まで2450m車4分!
*薬王堂岩手鵜飼店まで470m徒歩6分!
*岩手銀行滝沢支店まで1000m徒歩13分!
*滝沢市役所まで2700m車6分!

物件概要

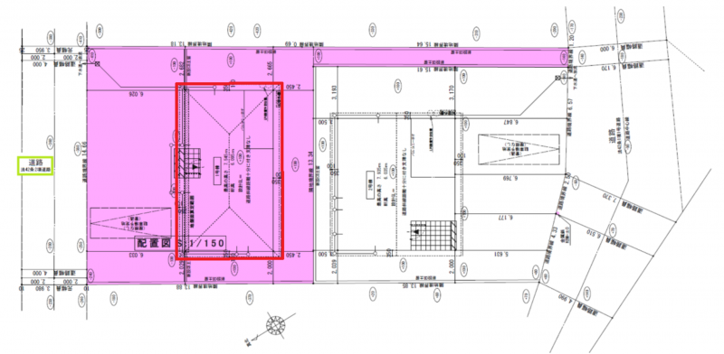
所在地 滝沢市鵜飼諸葛川 価格 2,650万円
交通

いわて銀河鉄道 青山駅 まで 徒歩28分

バス停境橋 まで 徒歩5分

土地権利 所有権
小学校区 鵜飼 ( 1260m ) 中学校区 滝沢南 ( 2700m )
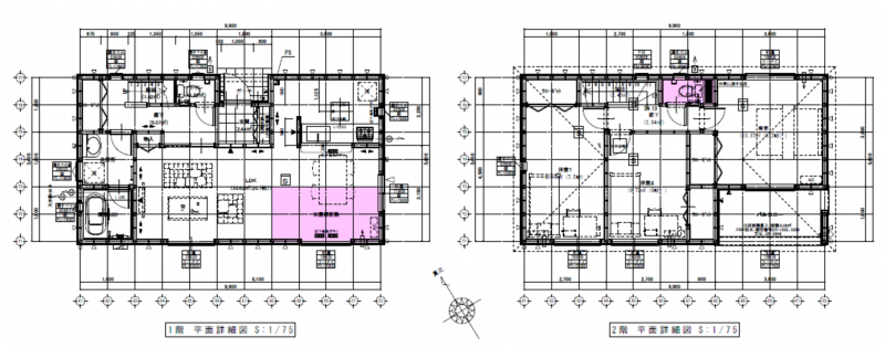
間取り 3LDK 築年数 2026年(令和8)4月
土地面積 実測 200.50㎡(60.65坪) 建物面積 98.82㎡ (29.89坪)
地目 宅地 私道負担 あり0.32㎡
都市計画 市街化区域 用途地域 1種中高
建ぺい率 60% 容積率 199%
上水道 公共 下水道 公共
ガス プロパン個別 現況 建築中
構造 木造 駐車場 有 3台
取引態様 仲介 明渡 予定 2026年4月下旬
建築確認番号 第R07SHC123624号
設備・条件 システムキッチン、シャンプードレッサー、洗浄便座、浴室乾燥機、追い焚き、複層ガラス、ルーフバルコニー、モニタ付インターホン、駐車場2台分、駐車場3台分、床下収納、トイレ2箇所、フルオートバス、3口コンログリル付、浄水器、エアコン、人感センサー付ライト、カードキー、ディンプルキー、ダブルロックドア、省エネ給湯器、火災警報器(報知機)、EV車充電設備、防犯カメラ、外構
備考 長期10年構造保証&定期点検で安心のアフターフォロー、耐震プラス制震の家、制震装置搭載住宅、耐震等級3、住宅性能評価物件、フラット35S利用可、住宅ローン控除対象
施工会社:(株)アーネストワン
TVアンテナ・網戸・居室照明・カーテンレール別途
不動産用語集

弊社では、売主様に配慮し、物件所在地を掲載していない物件がございます。
詳細については、お気軽にお問合せください。

(物件番号: 3003951)

【更新年月日】2026年01月13日
【次回更新日】2026年02月13日

周辺地図を確認する

特記事項

※不動産物件情報は最新のデータの掲載を心がけていますが、データの書き換えの都合上、売却済みなどの場合はご容赦ください。 ※掲載されている不動産物件データが現況と異なる場合は現況を優先します。

LOGIN 会員ログイン

メールアドレス
パスワード

パスワードを忘れた方はこちら

SEARCH 物件検索

    種別を選択

エリアを選択

価格を選択



こだわり検索

盛岡市の不動産売買情報

snsをフォロー
インスタグラム

HPを見たと言ってお気軽にお問い合わせください

0120-670-155

営業日時:9:00~18:00(土・日)/ 8:00~17:00(平日)

定休日:水曜日・祝日・他

〒020-0133 岩手県盛岡市青山一丁目18-8